Limbach Company
Internship
Jun 2022 - Aug 2022 
Wilmington, Massachusetts, United States
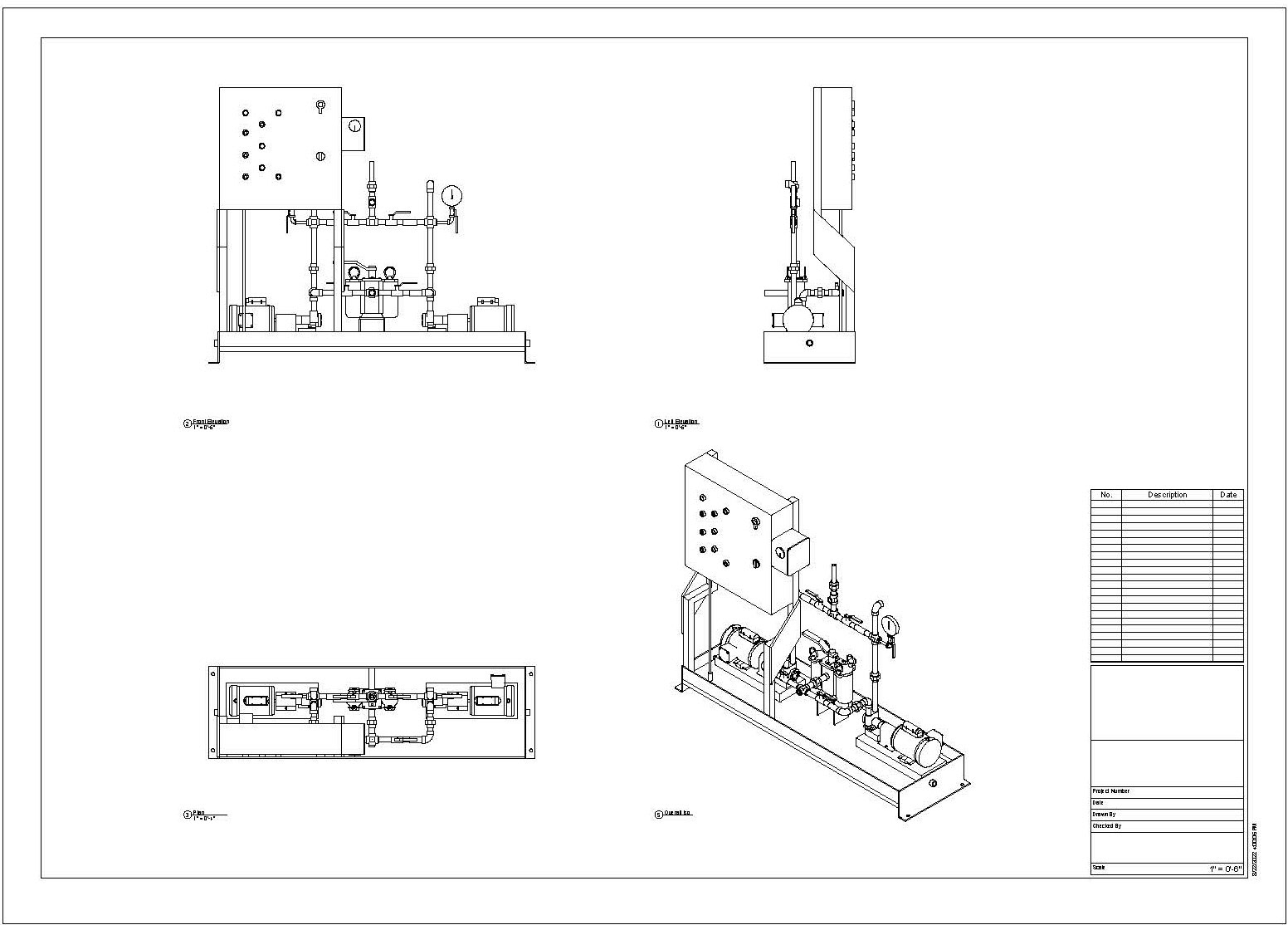
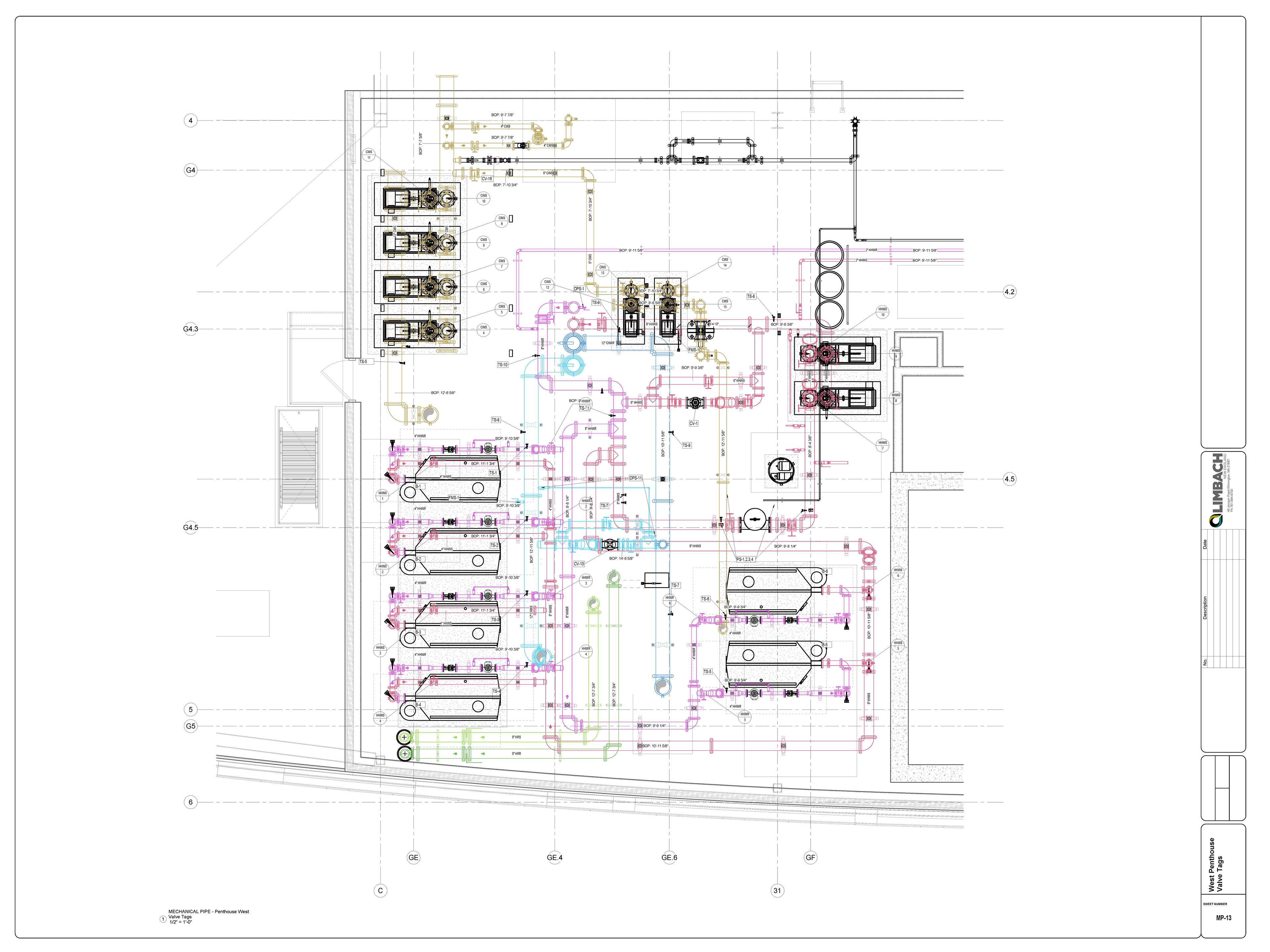
During summer 2022, I assisted Limbach's New England branch's VDC/BIM department of in the production of as-built plans, piping spool drawings, and mechanical equipment submittal sheets for various lab/office construction projects in Boston, allowing me to gain experience with Revit MEP and AutoCAD. Below are work samples I completed during the internship.
Generator fuel oil pump Revit family
Generator fuel oil pump Revit family
Mechanical pipe spool drawings
Mechanical pipe spool drawings
Air Handler valve tags and annotations
Air Handler valve tags and annotations
Condenser water pump submittal drawing
Condenser water pump submittal drawing
Mechanical pipe floor plan valve tags
Mechanical pipe floor plan valve tags
Mechanical room floor plan valve tags
Mechanical room floor plan valve tags
Back to Top